The story of the apartment!

Violík, also known as Labský štít, is a peak with an altitude of 1472 meters above sea level, located on the Czech-Polish border on the ridges of Krkonoše mountains. The route here leads either from Sněžné jámy or from Labská louka past the source of the Elbe River.

Secret tip
Secret tip
From the Czech side, it is a very easy hike along the mountain ridge. Don’t be afraid to conquer it from the Polish side either. There you can hike up the ski slope from Szklarska Poreba to Szrenica and then follow the Czech-Polish Friendship trail (Cesta Česko-polského přátelství) along the ridge or below it.
Rokytna resort

Violík

Violík, also known as Labský štít, is a peak with an altitude of 1472 meters above sea level, located on the Czech-Polish border on the ridges of Krkonoše mountains. The route here leads either from Sněžné jámy or from Labská louka past the source of the Elbe River.

Secret tip The story of the apartment
2+kk
Layout
1GF
floor
77 m²
Floor area
SKIALP
building

Apartment Violík

Description

One-bedroom apartment with a floor area of 76.9 m2. Thanks to the southern orientation of the main living areas and the modern glass facade, there is plenty of natural daylight ensured throughout the day. The apartment's interior provides ample built-in storage space. Each apartment also includes a reserved space for storing skis or bicycles, access to the shared spa with Finnish sauna and entry to the resort's extensive garden with relaxation zones.

Alpine Nordic Skialp Creek level Road level
Standards
Comprehensive interior design down to the last detail. The highest-quality elements are used, with an emphasis on functionality and design. The choice of materials takes into account the soul of the site and significant natural elements, especially wood. You can always choose the premium option for important elements.
More about standards
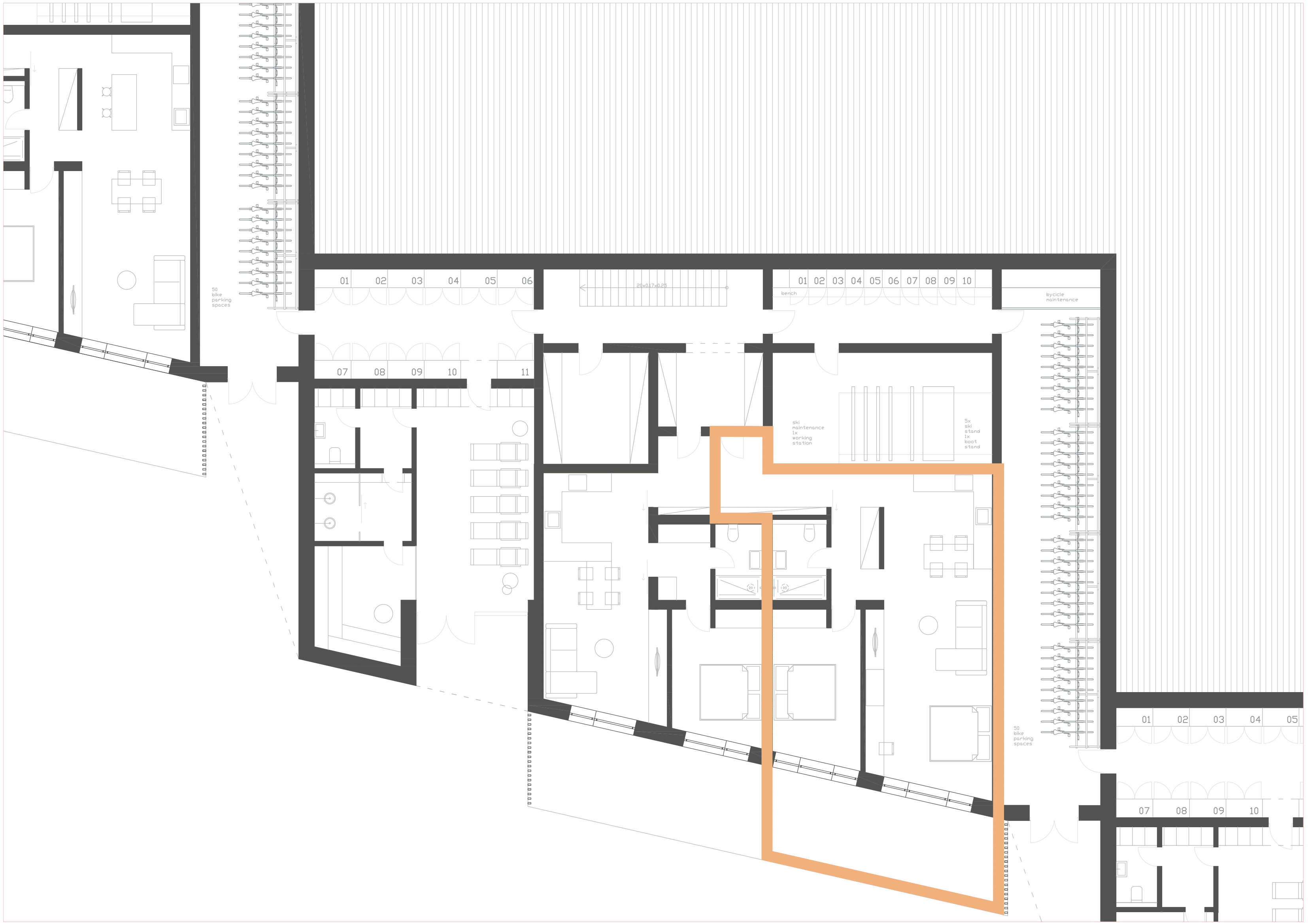
2+kk | Violík | Building Skialp
1.01 Living room + kitchen 46,6
1.02 Master bedroom 15,1
1.03 Bathroom 4,1
1.04 Hallways 7,5
Usable area 73,3
Internal construction and other areas 3,6
Floor area 76,9
FINISHED IN STANDARD
AMPLE STORAGE SPACE
LIFT TO ALL FLOORS
RELAXATION GARDEN
SKI AND BIKE STORAGE
PARKING SPACES

Apartment Violík

Location

Rokytnice nad Jizerou is a mountain town with full service and ranks among the best ski resorts in the Czech Republic. The place is also considered as the uncrowned king of Czech ski mountaineering, and it has plenty to offer for lovers of ridge tours and those who prefer groomed cross-country trails.

The name of the SKIALP apartment house celebrates Rokytnice nad Jizerou as the mecca of Czech ski mountaineering. Local landmarks such as Lysá hora, the Kotel peak and other places offer a variety of beautiful trips starting with beginner friendly ski mountaineering routes that lead on the ski slopes to more demanding ridge tours across the Krkonoše Mountains. Individual apartments in the Skialp building are named after interesting places that can be visited during ski mountaineering tours in the surrounding area.

 

Alpine Nordic Skialp
Arrange a meeting with us and we will be happy to introduce the project to you.
Developer
Arbol Rokytnice s.r.o.
Paprsková 1535/2, Krč, 140 00 Prague 4
Company ID: 09350748
available for viewing at Justice.cz
Building permit obtained - 1Q 2023
Construction commenced in Q4 2024 only the developer’s preliminary estimate