The story of the apartment!

The “Přibližovák,” or the Horní Domky four-seater chairlift, starts at the parking lot and serves as the gateway to the area with the same name near Lysá hora. The chairlift was installed in 2006 and is in operation ever since, even in summer.

Secret tip
Secret tip
There is a very good ski rental shop right next to the lift and skialp equipment is available across the street in the Kamínek building. A rope park is here during the summer. A minor downside is its pace, but sometimes, when the lift operators are in a good mood, they can speed it up a little:)
Rokytna resort

Přibližovák

The “Přibližovák,” or the Horní Domky four-seater chairlift, starts at the parking lot and serves as the gateway to the area with the same name near Lysá hora. The chairlift was installed in 2006 and is in operation ever since, even in summer.

Secret tip The story of the apartment
2+kk
Layout
1GF
floor
77 m²
Floor area
ALPINE
building

Apartment Přibližovák

Description

One-bedroom apartment with a floor area of 76.9 m2 offers a southern orientation of the lounge and bedroom. A big plus is the modern glass facade that provides a generous amount of daylight throughout the day. The apartment's interior provides ample built-in storage space. Each apartment also includes a reserved space for storing skis or bicycles, access to the shared spa with Finnish sauna and entry to the resort's extensive garden with relaxation zones.

Alpine Nordic Skialp Creek level Road level
Standards
Comprehensive interior design down to the last detail. The highest-quality elements are used, with an emphasis on functionality and design. The choice of materials takes into account the soul of the site and significant natural elements, especially wood. You can always choose the premium option for important elements.
More about standards
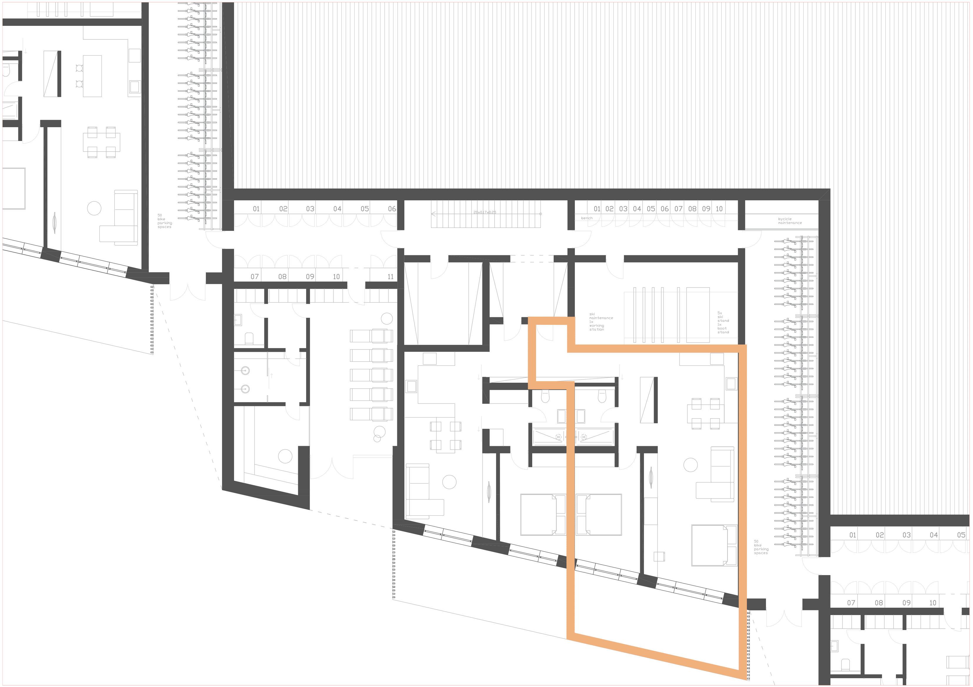
2+kk | Přibližovák | Building Alpine
1.01 Living room + kitchen 45,5
1.02 Master bedroom 16,0
1.03 Bathroom 4,6
1.04 Hallways 7,7
Usable area 73,8
Internal construction and other areas 3,1
Floor area 76,9
FINISHED IN STANDARD
AMPLE STORAGE SPACE
LIFT TO ALL FLOORS
RELAXATION GARDEN
SKI AND BIKE STORAGE
PARKING SPACES

Apartment Přibližovák

Location

Rokytnice nad Jizerou is a mountain town with full service and ranks among the best ski resorts in the Czech Republic. The place is also considered as the uncrowned king of Czech ski mountaineering, and it has plenty to offer for lovers of ridge tours and those who prefer groomed cross-country trails.

The ALPINE apartment building was named in honour of the longest ski slope in the Rokytnice area, which is one of the best winter resorts in the Czech Republic. Alpine, or alpine skiing, has found a natural home in Rokytnice nad Jizerou. The area offers over 20 kilometres of ski slopes, 3 chairlifts and more than 20 lifts. Each apartment is then named after a local location that every downhill skiing enthusiast will enjoy.

 

Alpine Nordic Skialp
Arrange a meeting with us and we will be happy to introduce the project to you.
Developer
Arbol Rokytnice s.r.o.
Paprsková 1535/2, Krč, 140 00 Prague 4
Company ID: 09350748
available for viewing at Justice.cz
Building permit obtained - 1Q 2023
Construction commenced in Q4 2024 only the developer’s preliminary estimate